E&I Engineering
BBSD offers Electrical and Instrumentation (E&I) engineering services covers power generation and distribution, lighting, instrumentation, automation, and control systems, with a focus on safety, redundancy, and compliance with industry standards and regulations such as IEC, IEEE, API, and DNV. Our competences are summarized as follows but not limited to:
Electrical System Design
Instrumentation & Control Design
3D Modeling & Layout Integration

Electrical Design designs the Electrical power generation and distribution. Its work starts with inventory of all consumers in the electrical consumer list, along with hidden consumers such as packages and machinery auxiliaries, e.g., lube oil heater and pumpers. HVAD, lighting and small power of Local Equipment Room, heat tracing, instrumented valves, etc. The definition of electrical equipment includes:
Switchgear, transformers, MCCs, VFDs, and cabling.
Primary and secondary power distribution networks (HV, MV, LV)
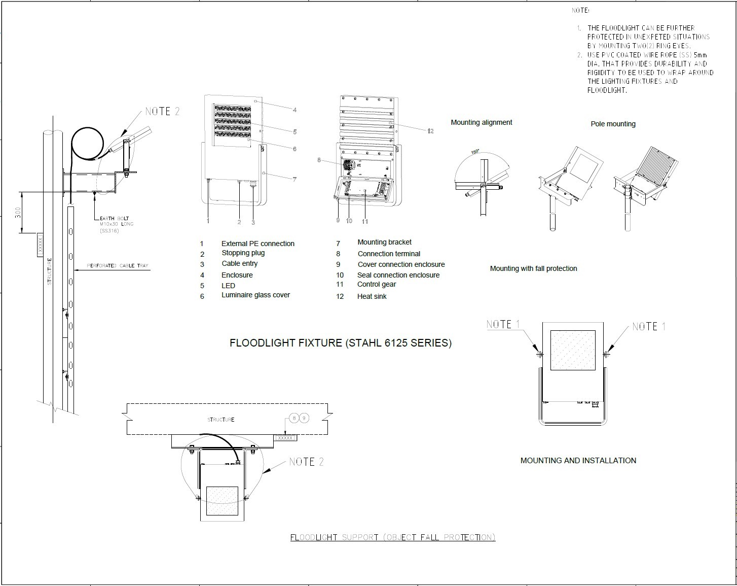
Define lighting, grounding, and earthing systems for hazardous areas
Instrument Design develops control philosophies for process automation, safety shutdown, and emergency systems and ensure compliances with IEC and DNV standards.
Define architecture for DCS, ESD, F&G (Fire & Gas), PAGA and SCADA system
Select field instruments such as transmitters, analyzers, control valves, and sensors
Specify smart instrumentation and communication protocols (e.g., HART, Foundation Fieldbus)

3D Modelling is the key for offshore plant design which requires complicated multiciliary coordination with piping layout design, mechanical Equipment and Structural Design:
Define routing and layout for electrical cables, cable trays, junction boxes, and control panels
Integrate instrument location plans and cable schedules into 3D models (e.g., Aveva E3D, SmartPlant)
Perform clash detection with piping, structural, and mechanical systems
Optimize layouts for space constraints, accessibility, and maintainability

